Northgate, Darlington, DL1 1PR
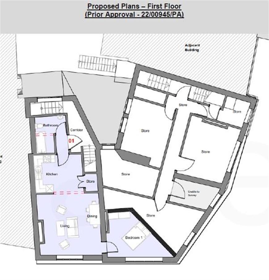
Town centre investment / development opportunity anchored by strong tenant covenant with planning consent for 6 apartments
Interested in this property? Contact us today!
Branch Details:
Darlington
Early Bird Alerts
how Much Can I Borrow?
Book A Valuation
Property Wanted
Discreet Property Register