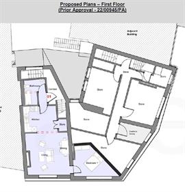
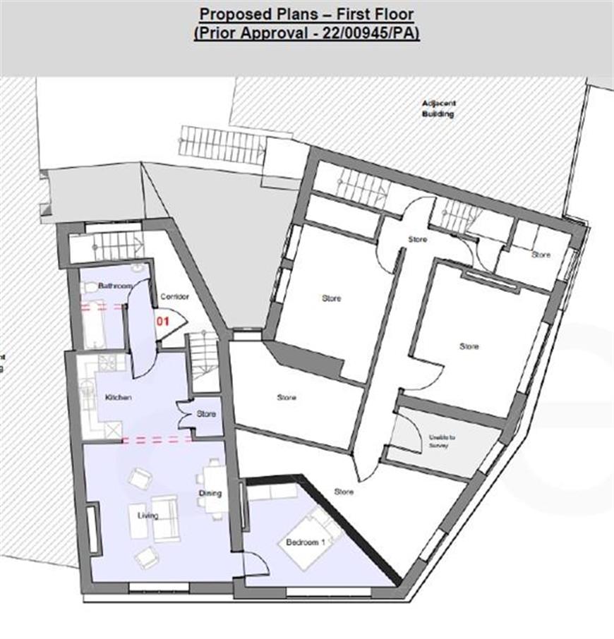
Northgate, Darlington, DL1 1PR
Town centre development opportunity held over first and second floors with planning consent for 6 apartments
Interested in this property? Contact us today!
Branch Details:
Darlington
Early Bird Alerts
how Much Can I Borrow?
Book A Valuation
Property Wanted
Discreet Property Register