£250,000
4
3
Denton, Darlington, DL2 3TY
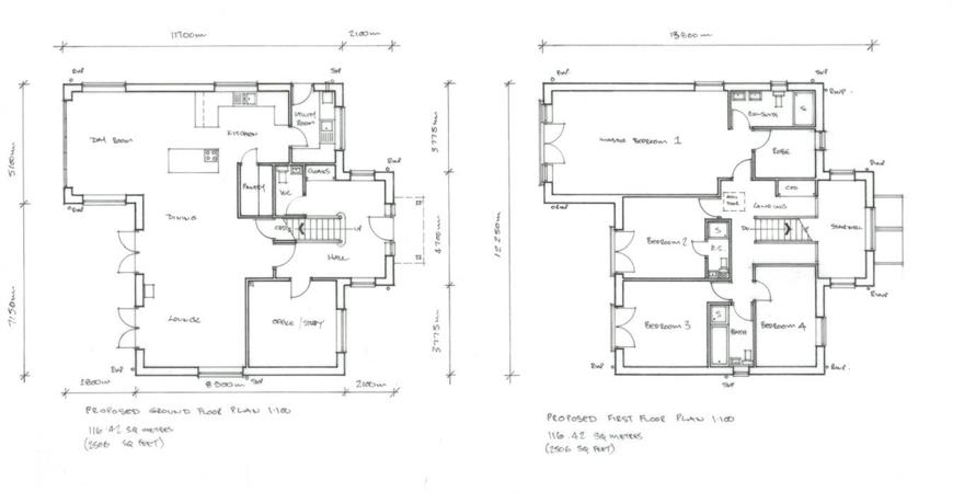
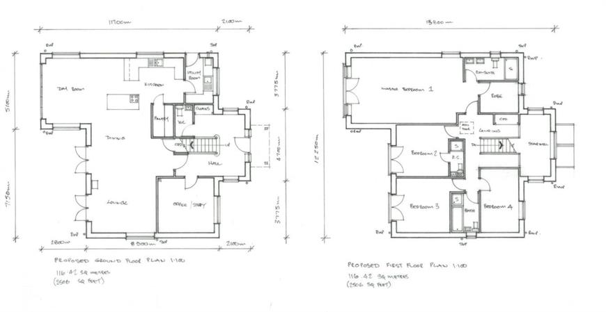
***0.5 ACRE BUILDING PLOT WITH FULL PERMISSION FOR A DETACHED HOME AND DETACHED DOUBLE GARAGE*** RURAL LOCATION WITH IN 10 MINUTE DRIVE OF DARLINGTON***SERVICES CONNECTED NEARY BY***GATED ACCESS***FOOTINGS HAVE BEEN STARTED***
Interested in this property? Contact us today!
Branch Details:
Darlington
Early Bird Alerts
how Much Can I Borrow?
Book A Valuation
Property Wanted
Discreet Property Register