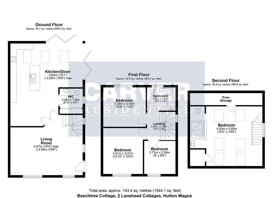
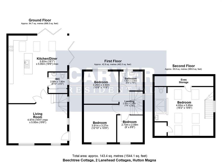
This wonderful rural cottage comes to market CHAIN FREE, with a wonderful layout and size commanding a magnificent rural setting with extensive views to the east, south and west of the property across adjoining countryside. Set over three floors the internal accommodation consists of a generous living room and a magnificent living/kitchen with corner bi-folding doors opening to the adjoining timber decked area. The kitchen is fitted with a comprehensive range of floor and wall units with integrated appliances with further natural light coming from three Velux roof windows. A WC completed the ground floor accommodation. The first floor provides three excellent bedrooms and a family bathroom with the attic converted into a magnificent master bedroom with en-suite shower area. The property has been significantly refurbished including the provision of a central heating system, electrical wiring, kitchen and two bathrooms, internal and external doors and floor coverings. The property also benefits from cavity wall insulation, roof insulation and sound insulation to the party wall. Fire plasterboard has been fitted to the kitchen to support the installation of a wood burning stove if required and windows have been replaced where required or replaced by double glazing. EPC rating TBC, Durham County Council tax band B.