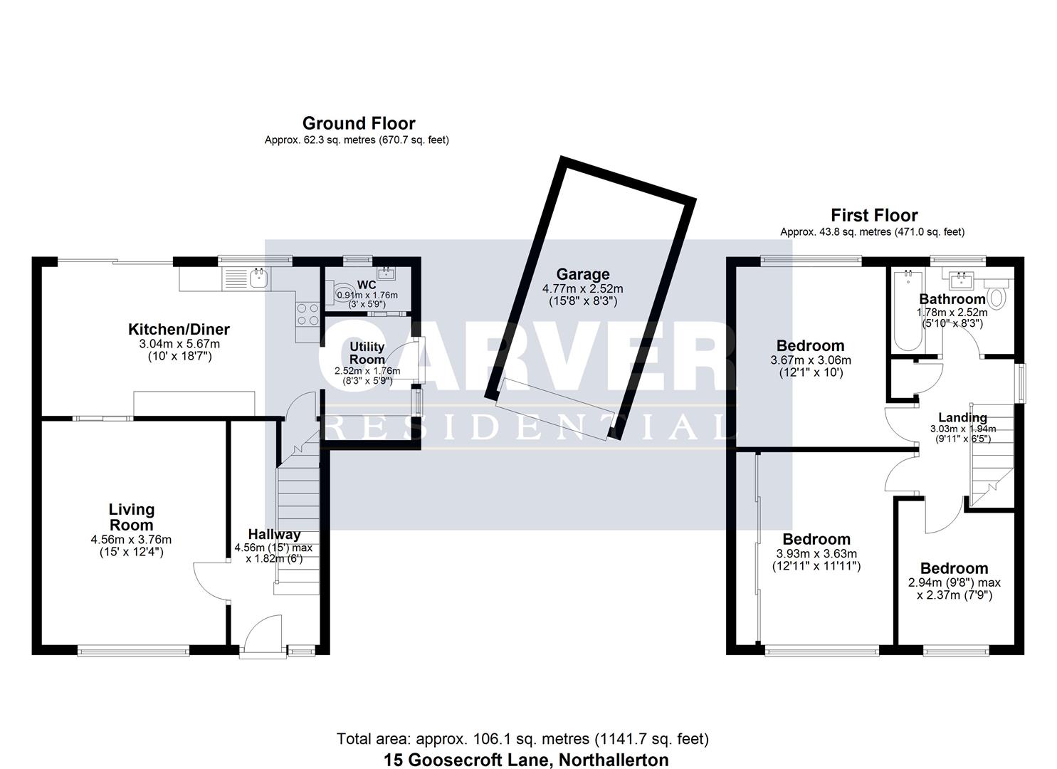
An extended three bedroomed detached family home located in a cul de sac location within easy reach of the High Street. The property benefits from upvc double glazing and gas fired central heating. The accommodation includes a spacious reception hall with useful understairs storage, good sized living room, open plan kitchen/dining room with modern wall and base units, work tops and integrated oven and hob. Patio doors open from the dining area to the rear garden. There is also a useful study/utility area and a ground floor cloaks room/wc. From the landing there is a master bedroom with fitted wardrobes, bedroom two is also a double room to the rear and bedroom three is a single room. The bathroom is fitted with a modern white suite with vanity storage. The loft space is boarded, has light and is accessed via a ladder. Externally there is a front garden, shared block paved driveway providing off street parking and access to the single garage. The rear garden has a stone flagged patio area, lawn and a summerhouse with double doors and power.