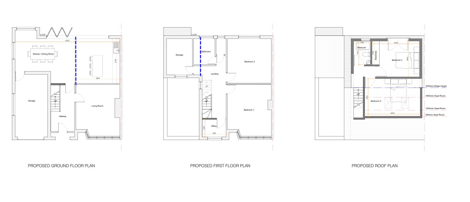
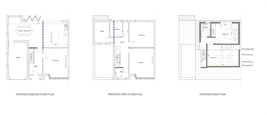
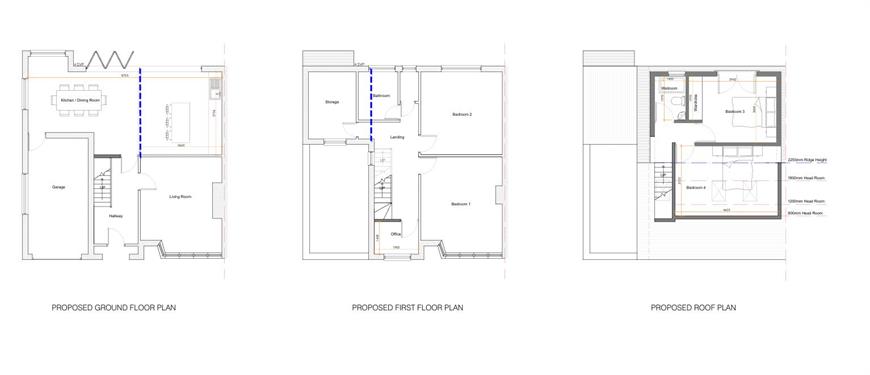
This mature three bedroom semi-detached home, located on a much sought after tree-lined West End street, must be seen to be appreciated. Modernised by the current owners with a new boiler and heating system as well as updated electrics the property is an ideal family home with a blend of modern and character features throughout. Internal accommodation consists of an entrance hallway, spacious separate living room and dining rooms, upgraded kitchen with pantry and ground floor WC. The first floor holds three well-sized bedrooms and a useful storage room which could be converted for more space as well as a house bathroom and WC. Planning permission has been granted already to create a vast kitchen dining room to the ground floor, within existing boundaries, as well as two double bedrooms and bathroom in the attic space should the buyer wish to explore this. Externally the property offers gardens front and rear with off street parking and a garage with utility area. EPC rating D, Darlington Borough Council tax band D.