Looking for a Character property...? Take a look at this Mid Terraced Victorian beauty.
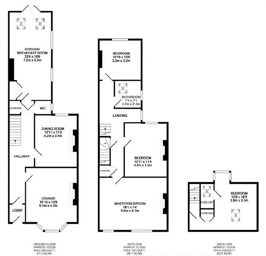
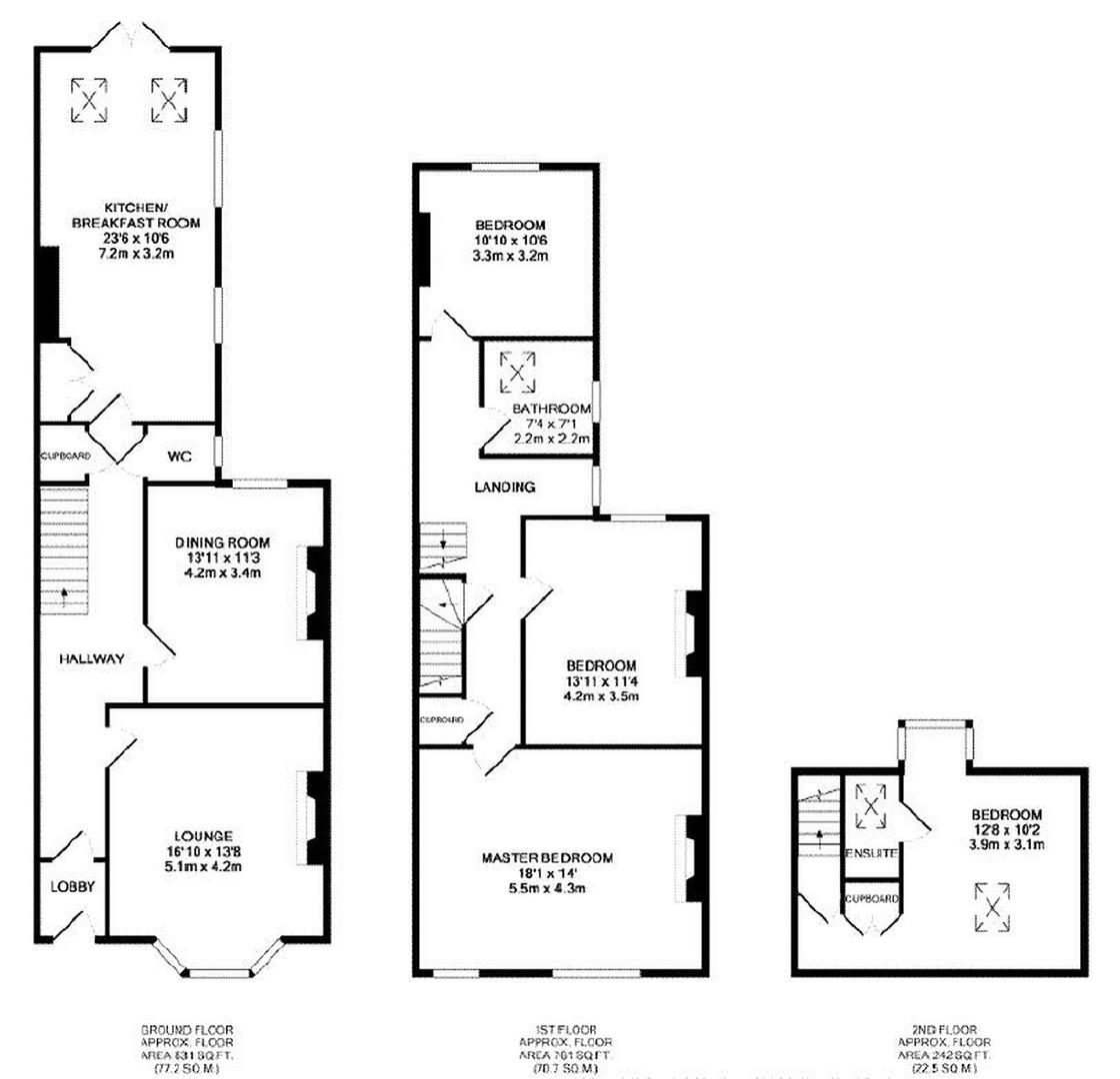
Located on the popular tree lined street of Greenbank Road in Darlington, this exquisite terraced house offers modern living and period charm. With four spacious bedrooms, this period property is ideal for families or those seeking extra space. With two well-appointed reception rooms and a huge Kitchen / Diner providing the 3rd living space, this home has ample room for relaxing and entertaining, making it easy to host gatherings or enjoy quiet evenings at home.
The property boasts two bathrooms, a traditional style family bathroom on the first floor with a further ensuite to the bedroom on the uppermost floor. The ground floor also has a a downstairs w/c ensuring convenience for all residents. The traditional design and period finishes throughout the home create a welcoming atmosphere that is both stylish and functional.
Additionally, the property includes off street parking to the rear with a garage, a valuable feature in this desirable area being so close to the Darlington town center. With its prime location, you will find yourself within easy reach of all local amenities, schools, and parks, making it an excellent choice for those looking to settle in a friendly community.
This terraced house on Greenbank Road is not just a home; it is a lifestyle opportunity waiting to be embraced. Whether you are a first-time buyer or looking to upgrade, the size of this property is sure to impress. Do not miss the chance to call this beautiful property 'Home'.