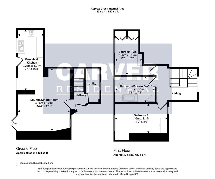
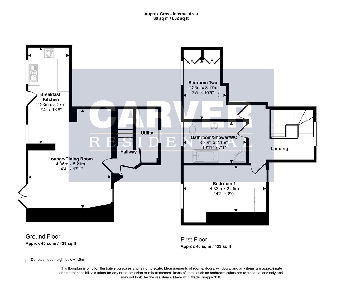
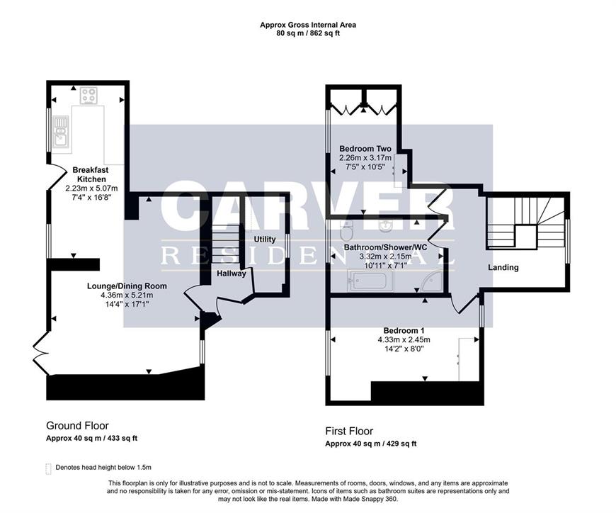
If your looking for a beautifully presented home with plenty of parking, a South-facing enclosed garden and further land, (extending to approximately 300sq m), this could be the property for you. Situated in the tranquil hamlet of Old Eldon this unique property features an entrance vestibule with useful utility room, a living/dining room with media wall and French doors opening to the rear garden and a fitted kitchen/breakfast room which also overlooks the rear garden. The first floor features a spacious landing with each bedroom equipped with built-in wardrobes whilst the family bathroom/WC features a separate corner shower cubicle for added convenience. There is a sizeable South facing garden to the rear of the property with lawn and patio with pedestrian gate opening to a substantial gated parking area. In addition there is a further piece of land extending to around 300sq m which could be utilised for a number of purposes including the erection of a double garage (pre-planning application previously applied for), stable block for horses, allotment, play area etc subject to the usual planning consents. Equipped with oil central heating to radiators with uPVC double glazing we would encourage an internal viewing at the earliest opportunity.