Nunnery Lane Darlington, an address that needs no introduction, a very well known and popular West End location and we have a very spacious 4 bedroom property on offer... it's bigger than you think!!
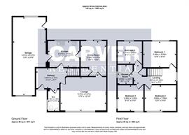
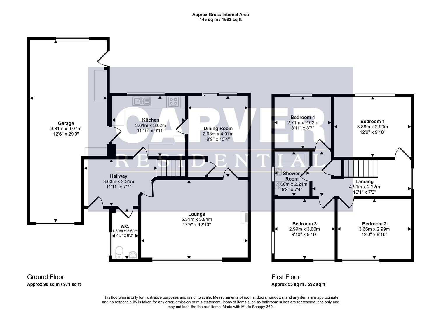
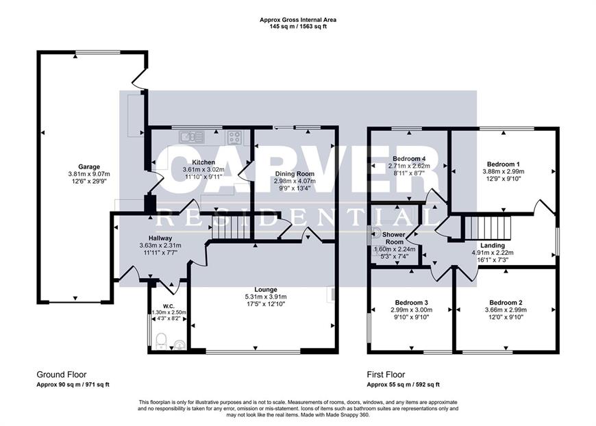
This delightful 4 bedroom home offers comfort and space for the entire family. With a generous size of 1,237 square feet, the property boasts two reception rooms, Formal lounge to the front and a formal dining to the rear leading off from the kitchen with Patio doors leading out to the large private garden ideal for both relaxation and entertaining guests. The garden in mainly laid with patio for low maintenance but can easily be laid to lawn for those with children in need of a garden.
The home features four well-proportioned bedrooms, 3 being double size, providing ample space for family members or guests. The single bathroom located upstairs is modern with a further W/C on the ground floor ensuring ease of access for all.
One of the standout features of this property is the parking with enough room for two cars on the driveway and a double length garage accommodating up to two further vehicles, which is a rare find in residential areas. This added convenience makes it an excellent choice for families with multiple cars or for those who enjoy hosting visitors.
Overall, this property on Nunnery Lane presents a wonderful opportunity for anyone seeking a spacious and comfortable family home. With its ample living space and practical amenities and fantastic schools all nearby nearby, it is sure to appeal to a variety of buyers looking for that special place to call 'Home'.